教室照明燈具的布置
發布日期:2014-01-26
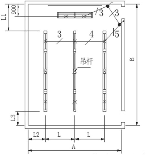
1. 燈具布置有規律可循,為設計提供了方便,也為確保照明設計質量提供了保證,但它是建立以下兩個條件基礎上的:
1)黑板燈及課桌燈均組成連續光帶;
2)采用管吊安裝方式。
2.布置規律:.黑板燈平行于黑板、課桌燈垂直于黑板布置,相關布置尺寸參見表2。特殊情況應以照度計算為準,例如美術教室教室的照度標準為500lx,光帶間距可能調整至1.8-2 米。
3.燈具安裝高度一般為2.5-2.7 米,黑板燈與課桌燈等高,特殊情況例如采用升降式黑板時,黑板燈安裝高度可為3=3.5 米。
1)黑板燈及課桌燈均組成連續光帶;
2)采用管吊安裝方式。
2.布置規律:.黑板燈平行于黑板、課桌燈垂直于黑板布置,相關布置尺寸參見表2。特殊情況應以照度計算為準,例如美術教室教室的照度標準為500lx,光帶間距可能調整至1.8-2 米。
3.燈具安裝高度一般為2.5-2.7 米,黑板燈與課桌燈等高,特殊情況例如采用升降式黑板時,黑板燈安裝高度可為3=3.5 米。
階梯教室的燈具安裝高度應以最后一個臺階為基準。

表2 教室燈具布置尺寸表


